welcome
welcome
Versatile office space for your business
All the luxuries of home
The space consists of 4 offices and conference rooms on the perimeter with an open floor plan for seating, pods and working areas. Conference rooms are enclosed in floor to ceiling glass. The larger conference room comes equipped with a 65” LCD TV and retractable movie screen. There’s even a full kitchen – stove, oven, microwave, refrigerator and microwave..
0
0
Offices
0
0
Bathrooms
features
features
Versatile office space for your business
01.
Fiber in-place
02.
Server room/rack
03.
Ceiling recessed projector screen
04.
New exterior painting & LED lighting
05.
Monument signage
06.
New landscaping approved – 2023
area map
area map
Get to know your neighborhood
Walking Distance
The Fountains at Roseville is a 5-minute walk away. Whether it’s time for lunch, a business meeting or you need a new outfit it’s all in your backyard.
Walking Distance
The Fountains at Roseville is a 5-minute walk away. Whether it’s time for lunch, a business meeting or you need a new outfit it’s all in your backyard.
Quiet neighborhood
Just far enough off the beaten path to enjoy a quiet work environment
Free on-site parking
Tenant and guest non-reserved parking
Trash & Recycling
Secured dumpsters on-site for tenant use
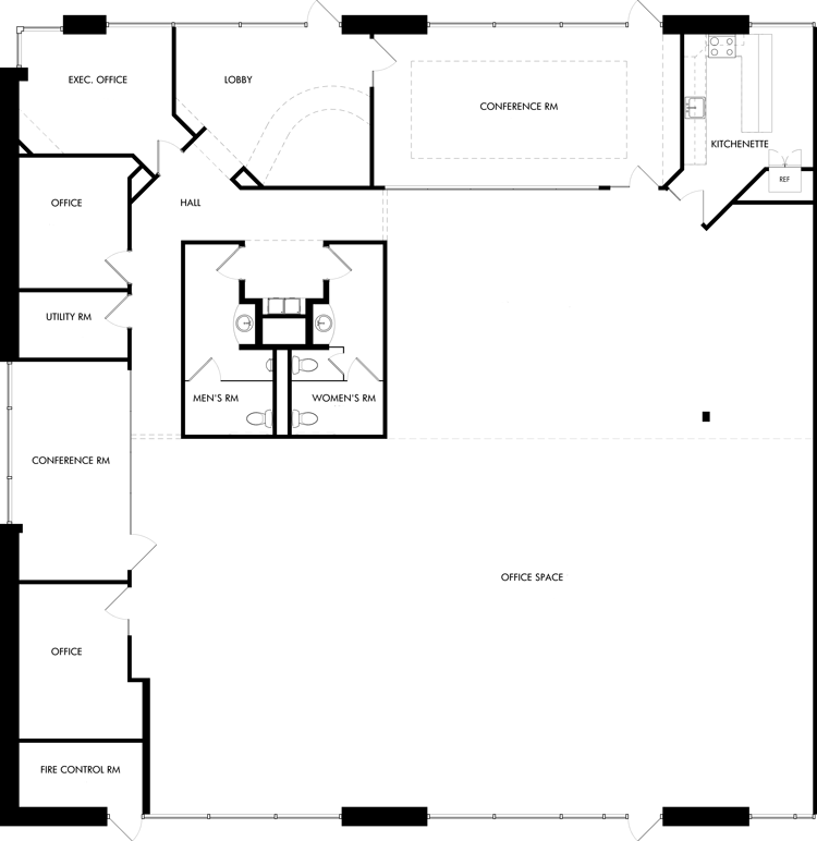
floor plans
floor plans
Floorplans
Offices
4
Conf Rooms
1
Kitchen
1
SQFT
5,588
Parking
Yes
Extremely versatile office space. Lots of open floor space bordered with glass enclosed offices and conference rooms. Tall exposed duct work ceiling. Polished cement floors. Surround sound. Fiber-in place + hard wire outlets throughout office.
amenities
amenities
Modern and updated office space
Be proud and excited to come to work at your new office. Invite your clients and guests for a meeting, lunch or happy hour.
- Fiber in-place
- Exterior LED lighting
- Freshly painted exterior
- Fresh slurry sealed lot
- Access to Highway 65 & I-80
- Walk to restaurants - Mikuni, Yard House
- New landscaping 2023
